New Zealand
PS1 Documentation[edit]
An PS1 is an engineering document that's required for all Moddex Product for New Zealand. There are PS1's available to view on the NZ One Drive, or in some cases a specific PS1 is made for an project.
Should you require a PS1 for a project, it will be mentioned in the original handover
Standard PS1 documentation[edit]
MOE Type Work Design Intent/Shop Drawings SOP[edit]
Please ensure the following points are reviewed & adhered to when reviewing MOE Type Shop drawings designs, anything not inline with these SOP’s please have Drafting team revise prior sending DI for client approval.
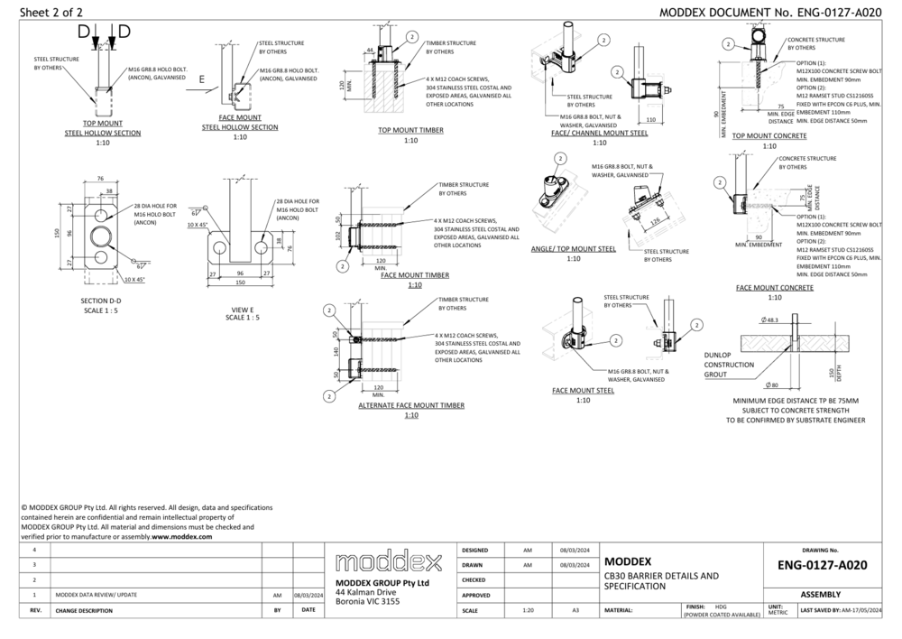
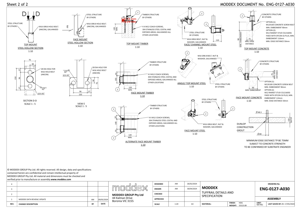
- 4 hole baseplates by default unless told otherwise
- No Chemical Anchors-only use HDG 12mm screw bolt for concrete fixings
- 75mm concrete edge distance will always be achievable onsite unless specifically stated meaning we can use Concrete screws unless reduced edge distance(50mm) is required
- Stainless Steel 180mm Coach screws in all timber areas with SS washer & Nylon separation washer
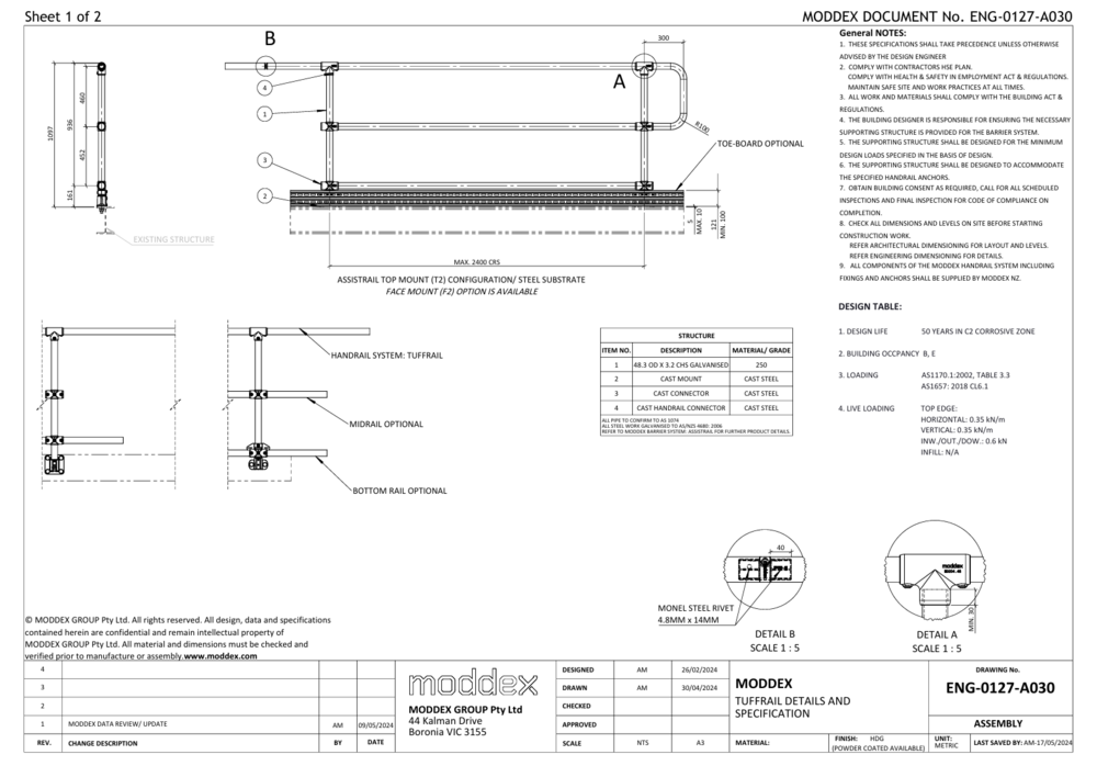
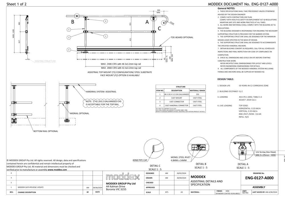
- All “handrails” and top rails to be 32nb
- Some situations where any standalone 1100mm high barriers are (Ie. Between canopy poles) could be 40nb top rail
- No closure bend/stop starts on parallel deck rails, always ensure end to end in one complete run wherever practical
- No handrails (AR150) to be attached to building cladding unless this is explicitly shown on plans/marked up drawings, AR10 (Stanchion mounted handrail) is the minimum requirement
Green Rule[edit]
For at least on end of the pipe, the sum of the tail and bend length (X+Y) must be at least 300mm, otherwise add 200mm green. Any tail (X) must be a minimum of 80mm, otherwise add 200mm green.
