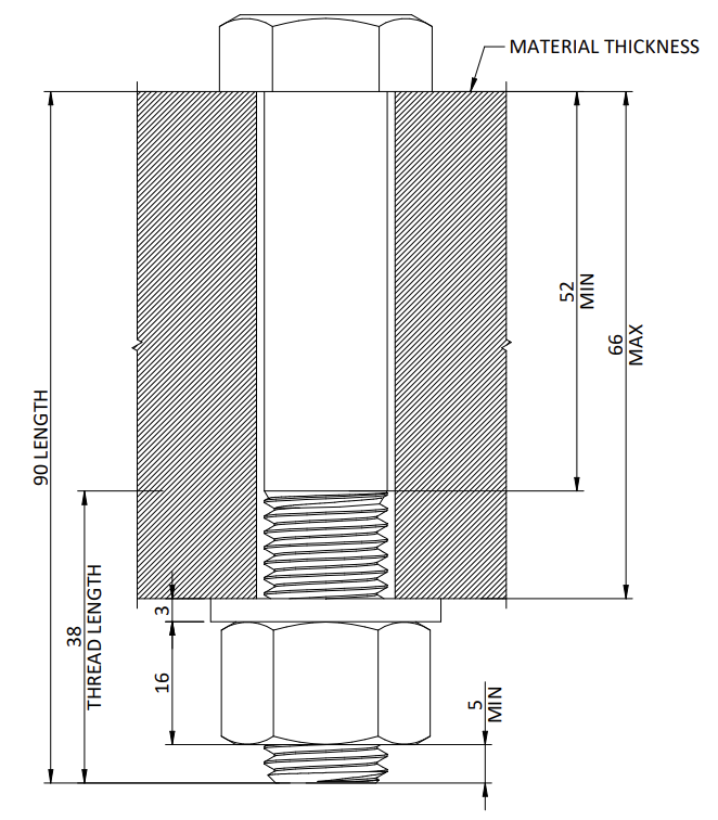
M16 Bolt Guide

From Design Academy Wiki

IMPORTANT : Remember to include baseplate width (10mm) into your calculations

If the following bolt lengths don't work for the thickness you are mounting to use a custom bolt.

Here is a link to calculate custom bolt lengths - [Bolt Length]

M16 Bolt Examples[edit]

M16x50mm

M16x65mm

M16x90mm

M16x100mm